ППР на бетонные работы
Разрабатывается полный комплект проекта производства работ на устройство монолитных бетонных и железобетонных конструкций с технологическими картами, схемами опалубки, календарным графиком и мероприятиями по обеспечению прочности, безопасности и соблюдению строительных норм
ППР на бетонные работы: технология, контроль, безопасность
Документация выполняется в Москве и по всей России с учетом СП 63.13330.2018 «Бетонные и железобетонные конструкции» и СП 48.13330.2019 «Организация строительства», что формирует правильную последовательность операций монтажа опалубки, армирования, укладки бетонной смеси, ухода за бетоном и контроля прочности.
Что входит в состав ППР на бетонные работы
- Пояснительная записка с описанием технологии устройства монолитных конструкций (фундаментов, стен, колонн, перекрытий), последовательности бетонирования, методов уплотнения бетонной смеси и режимов твердения;
- Стройгенплан с размещением бетононасоса, автобетоносмесителей, зон складирования опалубки и арматуры, пунктов приемки бетонной смеси и отбора проб на прочность;
- Технологические карты на каждый вид работ: монтаж и демонтаж опалубки, вязка арматурных каркасов и сеток, укладка бетонной смеси, виброуплотнение, уход за бетоном в летних и зимних условиях;
- Календарный график производства бетонных работ с указанием сроков набора прочности бетона, распалубочной прочности и возможности загружения конструкций;
- Мероприятия по контролю качества бетонной смеси (температура, подвижность, водоцементное отношение), прочности бетона (отбор кубиков, испытания на прессе), точности установки арматуры и опалубки;
- Требования к безопасности труда при работе на высоте, работе с вибраторами, перемещении опалубки и армокаркасов, передвижении автобетоносмесителей и бетононасосов;
Нормативная база: СП 70.13330.2012 и технология бетонирования
Проект выполняется в соответствии со СП 70.13330.2012, который устанавливает требования к монтажу бетонных и железобетонных конструкций всех типов зданий и сооружений
Свод правил определяет классы бетона по прочности на сжатие, требования к составу бетонной смеси, арматуре, защитному слою бетона, анкеровке стержней, допустимым отклонениям геометрии конструкций и условиям твердения для набора проектной прочности.
В ППР прописываются технологические решения, обеспечивающие соответствие выполненных бетонных конструкций проектным требованиям: правильная установка опалубки и арматуры, качественная укладка бетонной смеси без расслоения, уплотнение глубинными вибраторами, уход за бетоном для предотвращения трещин.
Технология монолитных работ: опалубка, армирование, бетонирование
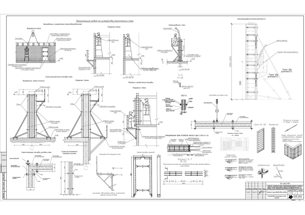
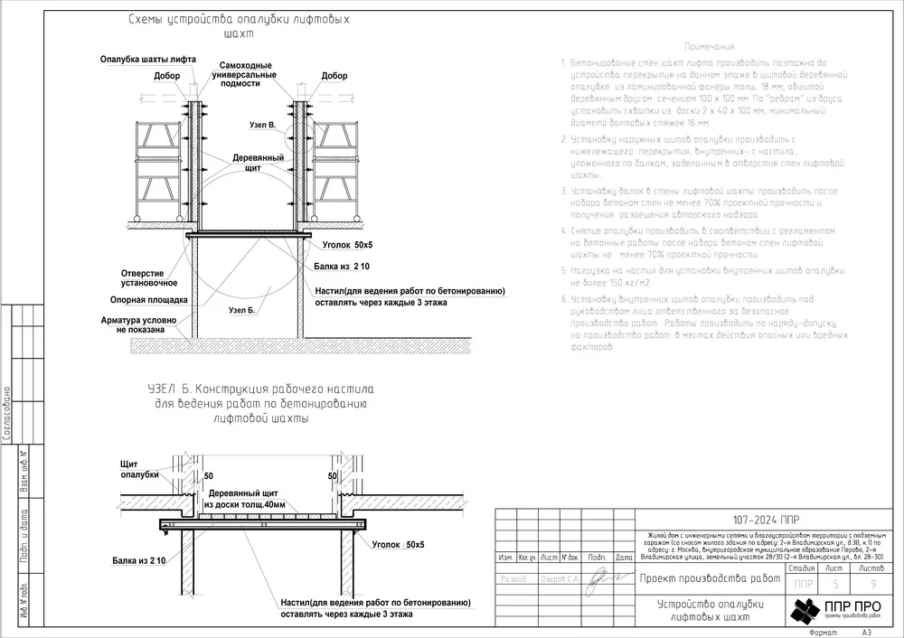
Для монтажа опалубки прорабатывается тип системы (щитовая, объемно-переставная, скользящая), порядок установки и крепления щитов, контроль геометрии, обработка поверхностей монолита смазкой и обеспечение герметичности стыков.
Для армирования указывается последовательность вязки каркасов и сеток, способы установки в проектное положение, обеспечение защитного слоя бетона фиксаторами, контроль шага стержней и мест закладных деталей.
Для бетонирования детализируется метод подачи бетонной смеси (насосом, бадьей, желобом), толщина слоев укладки (0,3–0,5 м), режим виброуплотнения (время обработки, шаг погружения), рабочие швы и технологические перерывы.
Также разрабатываем ППР на земляные работы
Контроль качества и испытания бетона
В ППР устанавливается порядок входного контроля бетонной смеси (подвижность, температура, соответствие паспорту), отбора контрольных образцов-кубиков на объекте и передачи их в лабораторию для испытаний на прочность.
Определяются сроки распалубки конструкций в зависимости от набранной прочности (обычно 70% проектной для вертикальных элементов, 100% для горизонтальных при снятии подпорок), методы неразрушающего контроля прочности бетона склерометром или ультразвуком.
Фиксируются требования к оформлению исполнительной документации: журналы бетонных работ, акты освидетельствования скрытых работ, протоколы испытаний бетона, исполнительные схемы фактического положения арматуры
Бетонирование в зимних и летних условиях
Для монолитных работ в зимний период разрабатываются мероприятия по прогреву бетона электродами или греющими проводами ПНСВ, утеплению опалубки, применению противоморозных добавок и контролю температуры твердения для набора прочности.
Для работ в жаркую погоду предусматриваются меры по защите бетона от обезвоживания: укрытие влажной мешковиной, полив водой, применение пленкообразующих составов и пластифицирующих добавок для замедления испарения влаги.
Москва и регионы: учет климата и логистики
Проекты выполняются для объектов в Москве, Московской области и по всей России с учетом климатических условий, доступности поставок бетонной смеси с РБУ, графика движения автобетоносмесителей и размещения бетононасоса на стесненных площадках.
Для московских объектов учитываются требования городских служб по организации движения спецтехники, времени производства работ, шумовым ограничениям и согласовательным процедурам при работе в зонах охраны исторической застройки.
Виды монолитных конструкций
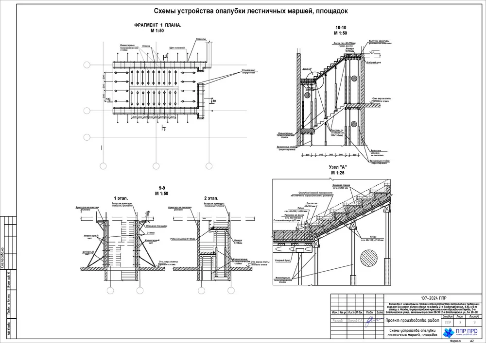
ППР разрабатывается для устройства монолитных фундаментов (ленточных, плитных, свайных ростверков), стен и колонн подвалов, надземных несущих стен, монолитных перекрытий и покрытий, лестничных маршей и площадок.
Для каждого типа конструкций прописываются особенности технологии: для фундаментов — подготовка основания и гидроизоляция, для стен — высота яруса бетонирования, для перекрытий — порядок бетонирования пролетов и опирание на стойки до набора прочности.
Сроки и стоимость разработки ППР
Типовой ППР на бетонные работы при наличии полного комплекта исходных данных (рабочий проект конструкций, ведомости опалубки и арматуры, ПОС, техзадание) разрабатывается от 3 рабочих дней
Стоимость зависит от объема монолитных конструкций (кубометры бетона), сложности армирования, количества типов конструкций и необходимости проработки зимнего бетонирования с расчетом прогрева
Для оценки задачи достаточно направить рабочий проект конструкций, ведомости бетона и арматуры, краткое описание объекта — будет предложен срок, состав ППР, бюджет и варианты оптимизации технологии под возможности подрядчика.
Примеры выполненных ППР на бетонные работы
Ознакомьтесь с образцами наших работ — качественно разработанными проектами производства работ для различных работ (фундаменты, стены, перекрытия, ядро жесткости)







Разработка ППР на монтаж металлоконструкций в составе комплексного проекта на объект.
Вносим правки до полного согласования документации
Комплект согласовывается с техническим надзором, учитывает замечания стройконтроля, что обеспечивает беспроблемное производство работ без остановок и переделок на объекте.
