ППР на монтаж металлоконструкций
Разрабатываем документ, который обеспечивает безопасную, технологичную и экономически обоснованную организацию возведения стального каркаса зданий и сооружений в рамках действующих норм Российской Федерации. ППР на монтаж металлоконструкций входит в состав организационно-технологической документации и применяется для планирования последовательности установки элементов, управления рисками и контроля качества на всех этапах возведения несущих конструкций. Область действия СП 70.13330.2012 прямо устанавливает требования к монтажу стальных балок, колонн, ферм и других элементов, что требует учитывать зоны работы техники, схемы строповки, геодезический контроль и последовательность операций при монтаже.
Монтаж стального каркаса: проектный подход
Ключевая цель — обеспечить устойчивость конструкций на всех стадиях возведения, безопасность персонала и точность установки элементов, соблюдая требования к площадке, средствам механизации и операционному контролю качества, закреплённые в СП 48.13330.2019 и СП 70.13330.2012. Для типовых задач по монтажу с применением автокранов, башенных кранов и укрупнительной сборки формируются решения, отражающие реальную технологию и графики, с привязкой к фактическим условиям объекта и рабочим чертежам марок КМ и КМД.
Состав проекта
- Пояснительная записка с технологией монтажа, включая последовательность установки колонн, балок, ферм и контроль пространственной неизменяемости конструкций;
- Генплан монтажных работ, размещение кранов и временной инфраструктуры с учётом зон действия строительных машин и опасных зон;
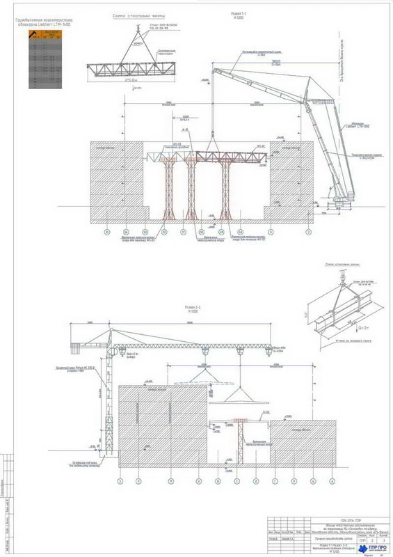
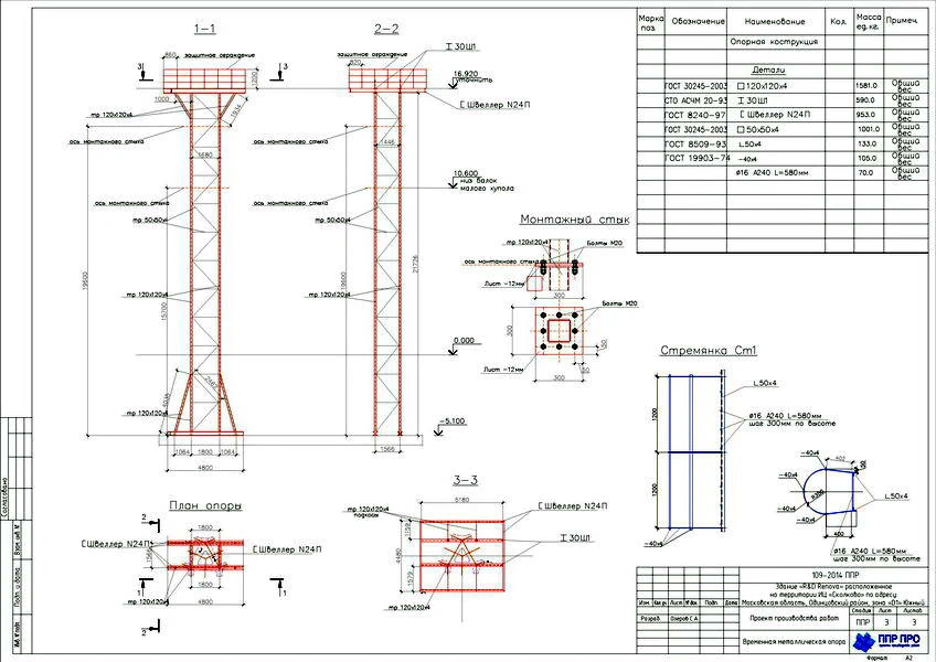
- Технологические карты на операции, включая укрупнительную сборку блоков, установку стальных стоек, монтаж подкрановых балок и стропильных ферм с применением грузоподъёмных механизмов;
- Схемы строповки, траверсы, перечень монтажной оснастки и карты безопасности работ на высоте и в стеснённых условиях;
- Календарный план и графики движения ресурсов, транспорта металлопроката и монтажных бригад с увязкой по сменности;
- Мероприятия по охране труда, электробезопасности, защите от падения и обеспечению устойчивости частей здания в процессе возведения.
Исходные данные
- Последовательность работ задаётся от фундаментов к колоннам, далее к балкам и фермам, с поэтажной установкой и исключением перегрузок, обеспечением пространственной жёсткости на каждом этапе;
- Опасные зоны, зоны действия машин и монтажные горизонты обозначаются на схемах и ограждаются до начала операций;
- Особое внимание — геодезическому контролю, выверке положения элементов, работе на высоте, а также надёжному закреплению конструкций до расстроповки.
Особенности и безопасность
- Комплект ППР включает текстовую и графическую части, схемы безопасности, расчёты устойчивости и таблицы ресурсов для представления технадзору;
- Планы монтажных зон, ситуационные схемы, схемы строповки укрупнённых блоков и журналы контроля формируются по структуре организационно-технологической документации;
- Привязка к СП 70.13330.2012, СП 48.13330.2019, перечень ссылочных документов и лист регистрации изменений обеспечивают прозрачность согласования.
Для согласования с надзором и заказчиком
- Подготавливается читаемый комплект: схемы зон действия кранов, планы размещения монтажной оснастки, технологические карты и графики в форме, привычной проверяющим;
- Возможна предварительная выдача примера пакета для обсуждения с технадзором/службой ОТ заказчика с последующей адаптацией под объект;
- Замечания устраняются оперативно: фиксируются правки, актуализируется ведомость изменений до статуса «согласовано» и допуска к началу работ.
Стоимость и сроки
- Бюджет зависит от объёма исходных данных, типов конструкций, выбранной технологии монтажа и насыщенности графической части;
- Базовый срок разработки типового ППР — от 3 рабочих дней при наличии полного комплекта исходных данных и стабильной конфигурации объекта;
- Корректировки вносятся оперативно до получения статуса согласовано у надзора и заказчика.
Примеры выполненных проектов
Ознакомьтесь с образцами наших работ — разработанными проектами производства работ на монтаж стальных конструкций.









Вносим правки до полного согласования документации с надзором
Учитываем замечания технадзора и профильных служб, оперативно вносим корректировки и сопровождаем пакет до статуса «согласовано» по установленной процедуре
