ППР на наружный водопровод, канализацию, кабельные линии
Формируем комплект организационно-технологической документации, обеспечивающий безопасную и технологичную прокладку инженерных коммуникаций в рамках действующих норм Российской Федерации. Проект производства работ на наружный водопровод, канализацию, кабельные линии применяется для планирования открытых траншейных способов монтажа, управления рисками при пересечении действующих сетей и контроля качества на всех этапах строительства наружных систем водоснабжения, водоотведения и электроснабжения. Область действия СП 48.13330.2019 и СП 129.13330.2019 охватывает устройство трубопроводов, смотровых колодцев и испытания систем, что требует последовательной разработки технологических карт, графиков и мероприятий по охране труда
Комплексное решение для прокладки наружных сетей водоснабжения и электроснабжения
Ключевая цель — обеспечить безопасность персонала и сохранность подземных коммуникаций, соблюдая требования к глубине траншей, защитным слоям, опасным зонам и операционному контролю качества, закреплённые в СП 48.13330.2019, СП 129.13330.2019 и ПУЭ. Для типовых задач по устройству водопровода, канализации и кабельных линий 10 кВ формируются решения, отражающие реальную технологию с привязкой к фактическим условиям площадки и характеристикам грунтов.
Состав проекта
- Пояснительная записка с технологией прокладки трубопроводов и кабелей, включая последовательность земляных работ, монтажа и контроль испытаний систем;
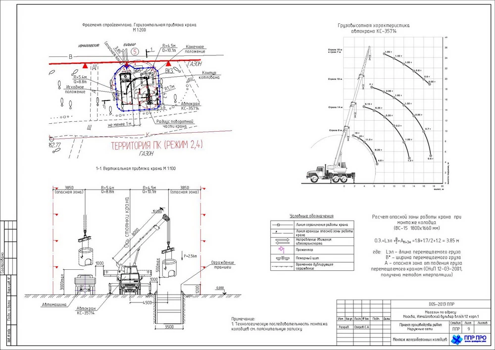
- Стройгенплан с размещением техники, временной инфраструктуры, складских зон и траншей с учётом зон действия экскаваторов и трубоукладчиков;
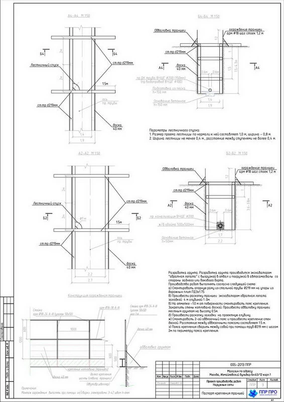
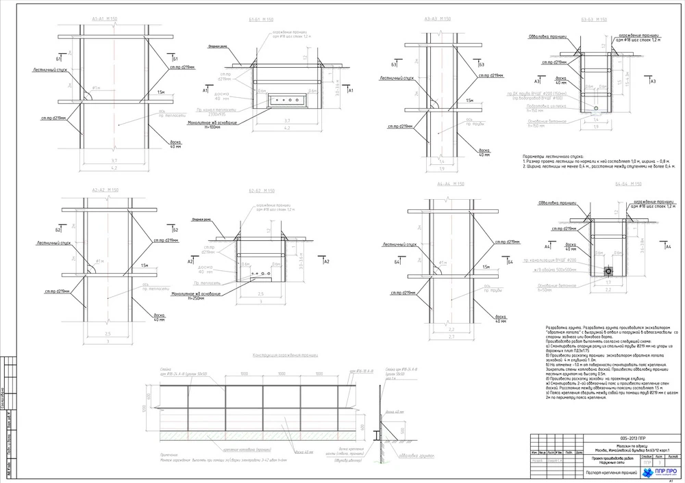
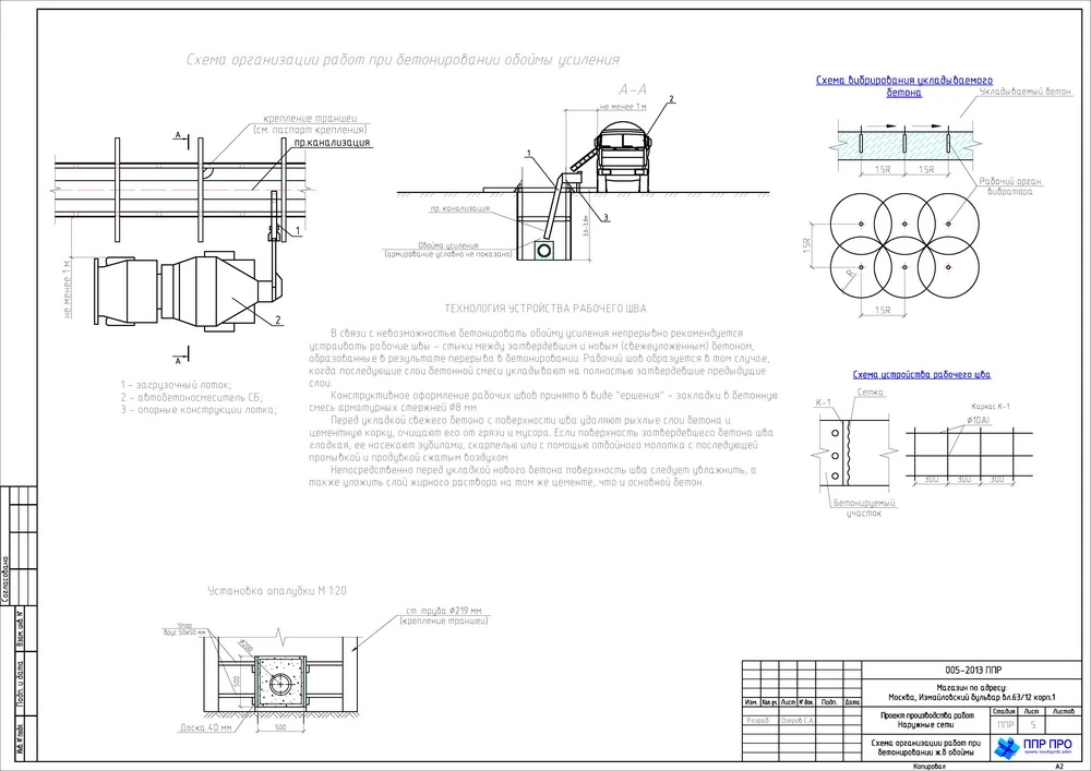
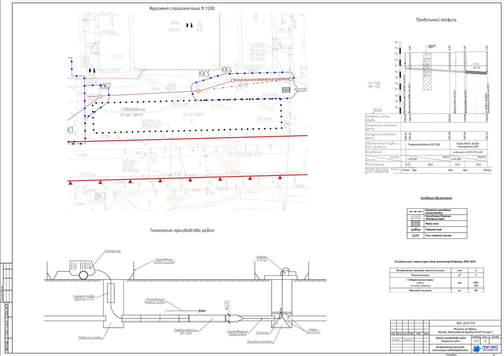
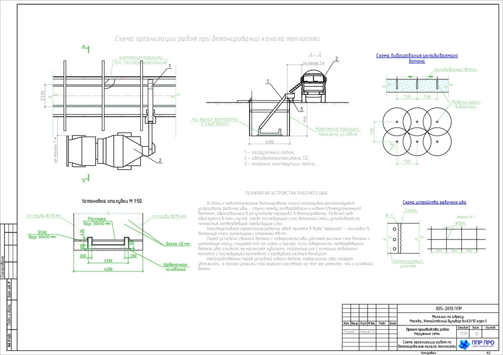
- Технологические карты на операции, включая разработку траншей, устройство песчаной подготовки, укладку труб с соблюдением уклонов, монтаж колодцев и засыпку с послойным уплотнением;
- Схемы прокладки кабеля 10 кВ на глубине не менее 0,7 м с защитными плитами, перечень оснастки и карты безопасности работ вблизи действующих коммуникаций;
- Календарный план и графики движения ресурсов, транспорта и поставки материалов с увязкой по сменности и погодным условиям;
- Мероприятия по охране труда, устройству креплений траншей, защите соседних сетей и водоотливу при высоком уровне грунтовых вод.
Исходные данные
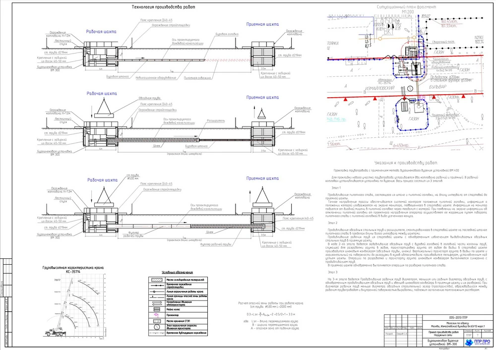
- Последовательность работ задаётся геодезической разбивкой, разработкой траншей с откосами или креплением, укладкой трубопроводов на песчаное основание и обратной засыпкой после гидравлических испытаний;
- Опасные зоны, зоны действия строительных машин и участки пересечения с теплосетями, теплотрассами и кабелем 10 кВ обозначаются на схемах и ограждаются до начала земляных операций;
- Особое внимание — соблюдению минимальных расстояний между кабелями (100 мм для линий до 10 кВ), контролю уклонов канализации, испытаниям на герметичность и безопасной работе в стеснённых условиях.
Технология и контроль качества
- Комплект ППР включает текстовую и графическую части, схемы безопасности, ведомости объёмов работ и таблицы ресурсов для представления технадзору;
- Планы крепления траншей, схемы строповки элементов, журналы контроля сварных соединений и испытаний систем формируются по структуре организационно-технологической документации;
- Привязка к СП 48.13330.2019, СП 129.13330.2019, СП 31.13330.2021 и ПУЭ, перечень ссылочных документов и лист регистрации изменений обеспечивают прозрачность согласования.
Для согласования с надзором и заказчиком
- Подготавливается читаемый комплект: схемы трассировки сетей, планы размещения смотровых колодцев, технологические карты земляных работ и графики в форме, привычной проверяющим;
- Возможна предварительная выдача примера пакета для обсуждения с технадзором и службой охраны труда заказчика с последующей адаптацией под фактические условия площадки;
- Замечания устраняются оперативно: фиксируются правки, актуализируется ведомость изменений до статуса «согласовано» и допуска к началу работ по устройству наружного водопровода, канализации и кабельных линий.
Стоимость и сроки
- Бюджет зависит от объёма исходных данных, протяжённости сетей, выбранной технологии прокладки и насыщенности графической части;
- Базовый срок разработки типового ППР — от 3 рабочих дней при наличии полного комплекта исходных данных и стабильной конфигурации трассы;
- Корректировки вносятся оперативно до получения статуса согласовано у надзора и заказчика при строительстве систем водоснабжения, водоотведения и электроснабжения.
Примеры выполненных проектов
Ознакомьтесь с образцами наших работ — разработанными проектами производства работ на прокладку наружных сетей водопровода, канализации и кабельных линий.













Вносим правки до полного согласования документации с надзором
Учитываем замечания технадзора и профильных служб, оперативно вносим корректировки и сопровождаем пакет до статуса «согласовано» по установленной процедуре
