Проект производства работ на монтаж окон ПВХ
Инженер ППР нашей компании разрабатывает документ, который обеспечивает безопасную, технологически выверенную технологию установки оконных конструкций из ПВХ‑профиля и древесины в рамках действующих нормативов Российской Федерации. Проект производства работ на монтаж окон ПВХ является частью комплекса организационно‑технологической документации и применяется для моделирования строительных процессов, управления рисками и операционного контроля на каждом этапе монтажа светопрозрачных ограждающих систем. Сфера применения СП 70.13330.2012 охватывает монтаж несущих и ограждающих конструкций, устанавливая нормы к узлам сопряжения блоков с проёмами стен, герметизации монтажных швов и фиксации оконных рам, что требует точного соблюдения технологической последовательности, маркировки опасных зон и систематического контроля геометрических параметров установки.
Проект производства работ на демонтаж: практический подход
Основная задача — соблюсти нормативные параметры теплозащиты, герметичности стыков и устойчивости конструкций к эксплуатационным нагрузкам согласно СП 70.13330.2012 и СП 48.13330.2019. Для типовых объектов с применением ПВХ‑профилей, деревянных рам и механизированного оборудования формируются проектные решения, отображающие фактическую технологию, календарные графики и привязку к условиям площадки
Состав проекта
- Пояснительная записка с описанием технологии монтажа, включая подготовку проёмов, способы крепления рам анкерными пластинами и дюбелями, контроль вертикальности и горизонтальности конструкций;
- Генплан строительной площадки с указанием размещения грузоподъёмных механизмов, зон складирования блоков, путей подачи оконных систем и временной инфраструктуры;
- Технологические карты на каждую операцию: демонтаж старых блоков, выравнивание и грунтование откосов, установку рам с применением монтажных клиньев, фиксацию крепежом, герметизацию швов;
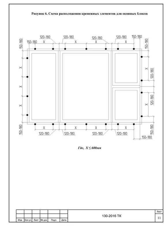
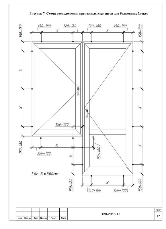
- Схемы крепления оконных блоков с указанием типов анкеров, расчётом несущей способности на восприятие ветровых нагрузок и карты безопасности при работе на высоте;
- Календарный план и графики поставки материалов, движения монтажных бригад и контроля качества с привязкой по сменности;
- Мероприятия по охране труда, защите смежных помещений от пыли и влаги, а также требования к применению средств индивидуальной защиты.
Исходные данные
- Последовательность операций определяется от подготовки проёма к установке рамы, затем монтаж створок и стеклопакетов, герметизация швов трёхслойной системой с внутренней пароизоляцией, средним утепляющим и наружным гидроветрозащитным слоями по ГОСТ 30971;
- Монтажный зазор между рамой и проёмом задаётся в диапазоне 15–80 мм в зависимости от размеров блока, поверхности проёма выравниваются и обеспыливаются для надёжной адгезии монтажной пены и герметизирующих лент;
- Особое внимание — контролю геометрии установки (отклонение не более 3 мм на всю высоту), правильному выбору крепежа и защите монтажного шва от ультрафиолета, влаги и температурных деформаций.
Требования к выполнению и контроль качества
- Комплект документации включает текстовую часть, чертежи узлов примыкания, схемы расположения крепёжных элементов, расчёты нагрузок и ведомости материалов для предоставления технадзору;
- Планы ограждения рабочих зон, схемы безопасного перемещения персонала, маркировка опасных участков и журналы операционного контроля оформляются в соответствии с требованиями организационно‑технологической документации;
- Ссылки на СП 70.13330.2012, ГОСТ 30971-2012, ГОСТ 30674-99 и перечень применяемых нормативов, а также лист регистрации изменений обеспечивают прозрачность согласования с надзорными органами.
Для согласования с надзором и заказчиком
- Подготавливается комплект документов: схемы узлов крепления, планы установки лесов и подмостей, технологические карты и графики в формате, удобном для проверки инспекторами;
- Доступна предварительная передача образца пакета документации для обсуждения с техническим надзором и службой охраны труда заказчика с последующей корректировкой под особенности объекта;
- Замечания устраняются в сжатые сроки: вносятся правки, обновляется ведомость изменений до получения статуса «согласовано» и разрешения на начало монтажа.
Стоимость и сроки
- Стоимость определяется количеством оконных блоков, сложностью архитектурных решений, выбранной технологией установки и объёмом графических приложений;
- Типовой срок подготовки ППР составляет от 3 рабочих дней при наличии полного комплекта исходных данных — проектной документации, планов этажей и спецификаций оконных систем;
- Корректировки выполняются оперативно до момента получения положительного заключения от надзорных органов и заказчика.
Примеры выполненных проектов
Изучите образцы выполненных работ — готовые проекты производства работ на установку светопрозрачных конструкций из ПВХ и древесины.








Вносим правки до полного согласования документации с надзором
Учитываем все замечания технического надзора и служб заказчика, оперативно вносим изменения и сопровождаем документацию до статуса «согласовано» в установленные сроки.
