ППР на фундамент
Разрабатывается полный комплект проекта производства работ на устройство, монтаж и демонтаж фундаментных конструкций с технологическими картами, календарным графиком, стройгенпланом, мероприятиями по контролю качества бетонирования, гидроизоляции и безопасности труда на всех этапах нулевого цикла строительства.
ППР фундамента: технология, контроль, безопасность
Документация выполняется в Москве и по всей России с учетом СП 45.13330.2017 «Земляные сооружения, основания и фундаменты», СП 48.13330.2019 «Организация строительства» и СП 70.13330.2012 «Несущие и ограждающие конструкции», что формирует правильную последовательность операций подготовки основания, земляных работ, устройства опалубки, армирования, бетонирования и защиты конструкций от воздействия грунтовых вод. Проект производства работ на устройство фундаментов обеспечивает соблюдение технологических требований при возведении ленточных, плитных и свайно-ростверковых оснований зданий и сооружений с учетом геологических условий площадки и проектных решений конструкций.
ППР фундамента включает разработку полной технологической документации для монолитных, сборных и комбинированных оснований зданий. ППР на монолитный фундамент содержит технологические карты бетонирования, армирования и контроля качества конструкций.
Что входит в состав ППР на устройство фундаментов
- Пояснительная записка для ППР на устройство фундаментов с описанием технологии монолитного фундамента (ленточного, плитного, свайного ростверка), последовательности земляных и бетонных работ, методов армирования, укладки бетонной смеси, гидроизоляции фундаментов и контроля прочности на всех этапах выполнения работ;
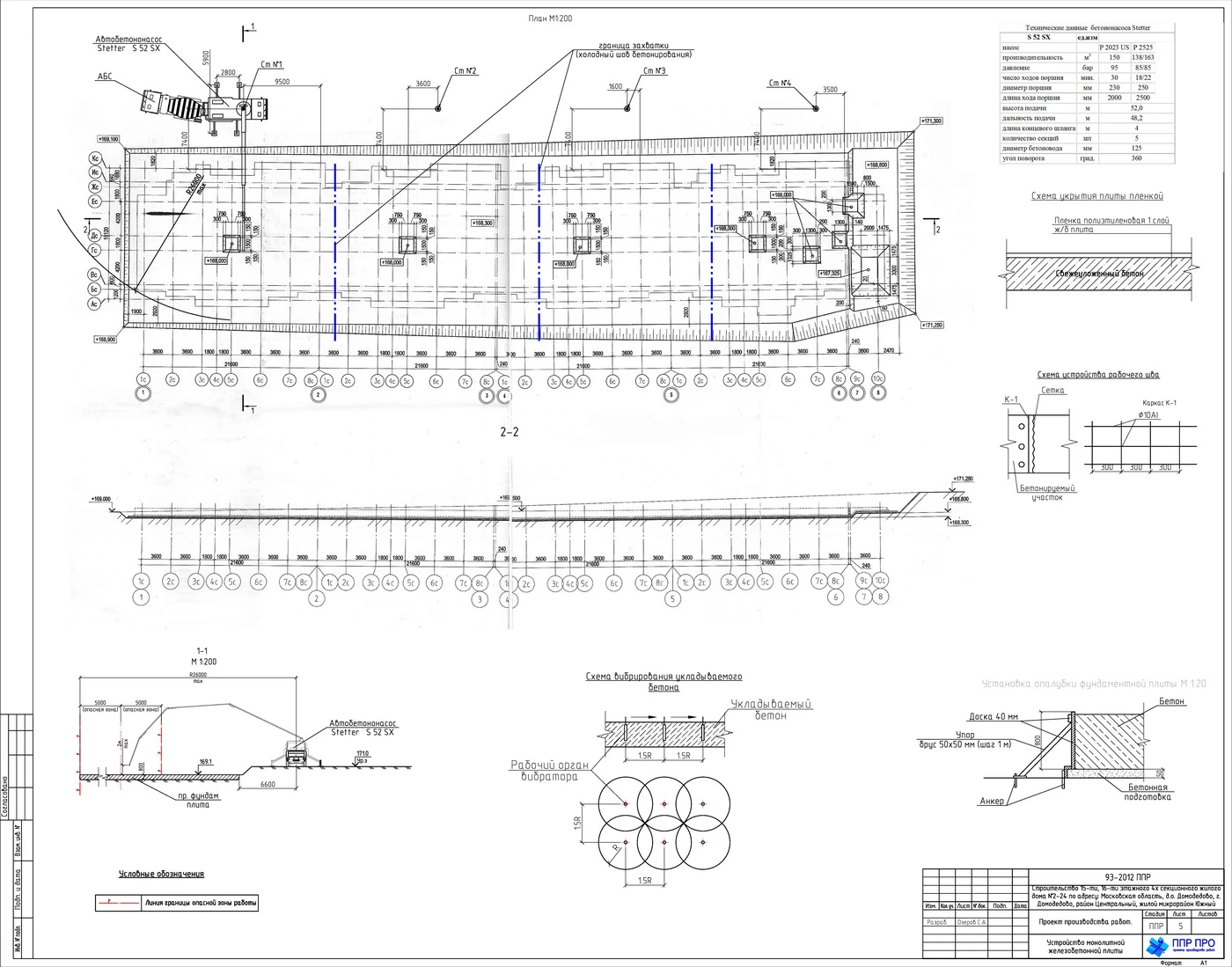
- Стройгенплан с размещением бетононасоса, автобетоносмесителей, экскаватора для копки котлована, зон складирования арматуры и опалубочных щитов, пунктов приемки бетонной смеси, расположением бытовых помещений и путей движения строительной техники по площадке объекта;
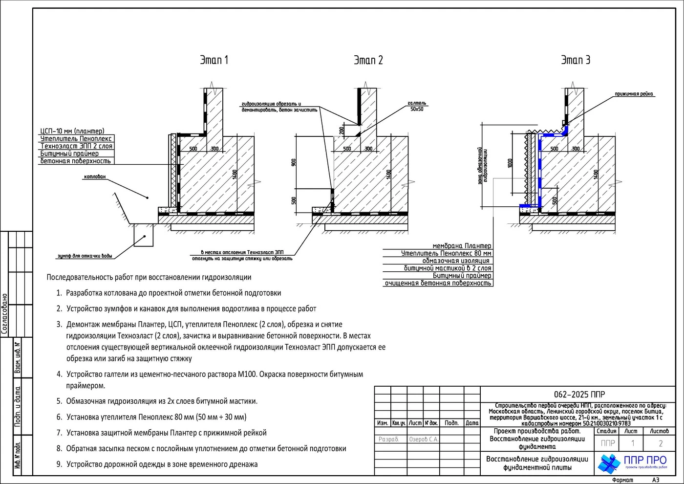
- Технологические карты на каждый вид работ: разработка котлована и траншей, устройство песчано-гравийной подготовки, монтаж и демонтаж опалубки фундаментов, вязка арматурных каркасов, бетонирование монолитных конструкций фундамента, устройство гидроизоляции фундаментов обмазочными и рулонными материалами, обратная засыпка пазух котлована;
- Календарный график производства работ на фундаменты с указанием сроков разработки грунта, монтажа опалубки, армирования, бетонирования, набора прочности бетона до распалубочной прочности, устройства гидроизоляции и возможности начала возведения надземных конструкций здания;
- Мероприятия по контролю качества бетонной смеси (подвижность, температура, соответствие паспорту), прочности бетона монолитного фундамента (отбор кубиков, испытания на прессе), точности установки арматуры, опалубки, геометрии котлована и соответствия отметок проектной документации;
- Требования к безопасности труда при разработке грунта экскаватором, работе в котловане, креплении стенок траншей, монтаже опалубки и арматурных каркасов, работе с вибраторами при бетонировании, передвижении автобетоносмесителей и бетононасосов на строительной площадке;
Нормативная база: СП 45.13330.2017 и технология фундаментных работ
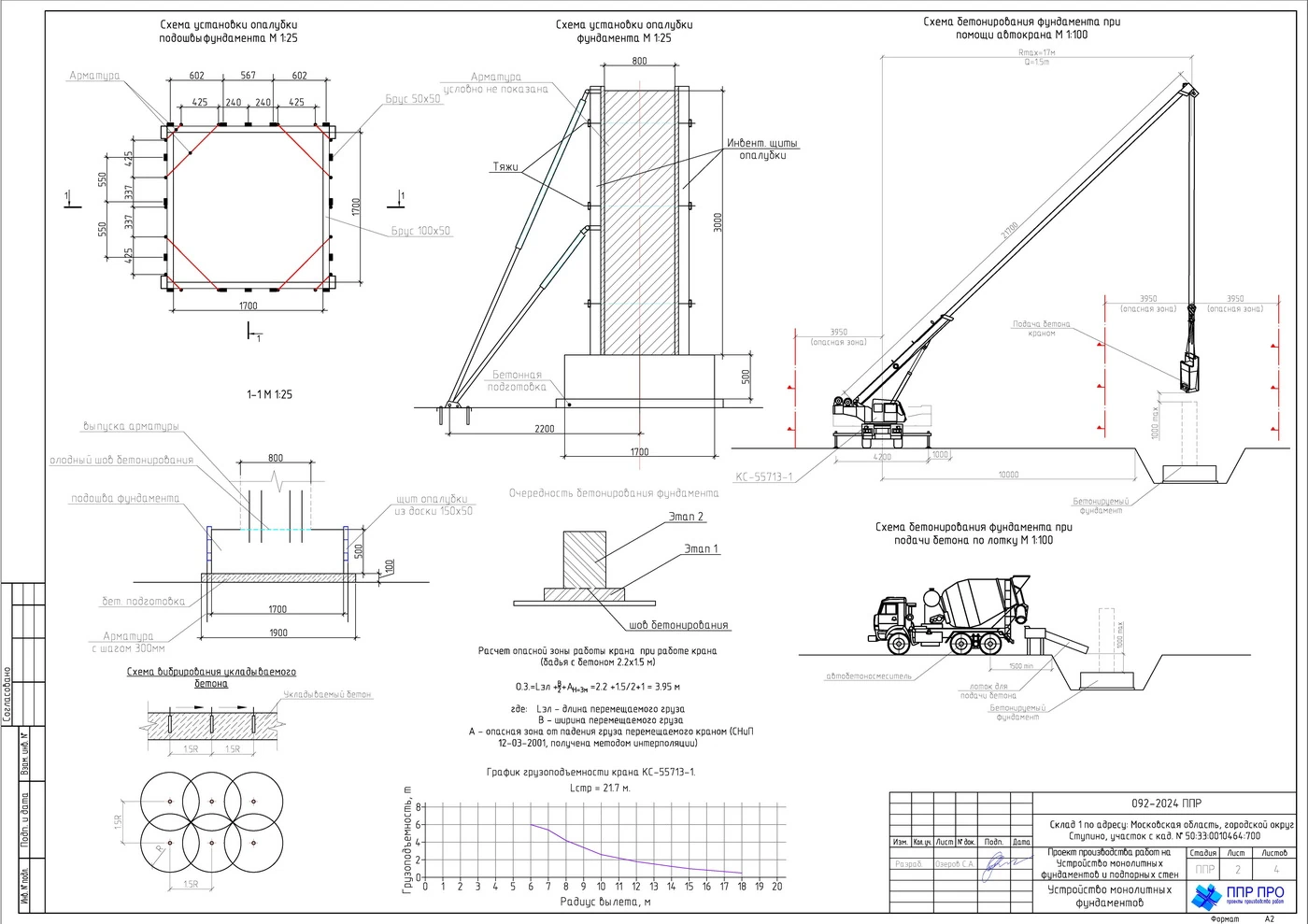
Проект производства работ на монтаж фундаментов выполняется в соответствии со СП 45.13330.2017, который устанавливает требования к производству земляных работ, устройству оснований и фундаментов всех типов зданий и сооружений с учетом инженерно-геологических условий площадки строительства. Свод правил определяет технологию разработки грунта в котлованах и траншеях, требования к уплотнению основания, устройству песчано-гравийной подготовки, монтажу опалубки, армированию, бетонированию монолитных фундаментов и контролю качества выполненных работ на каждом этапе производства.
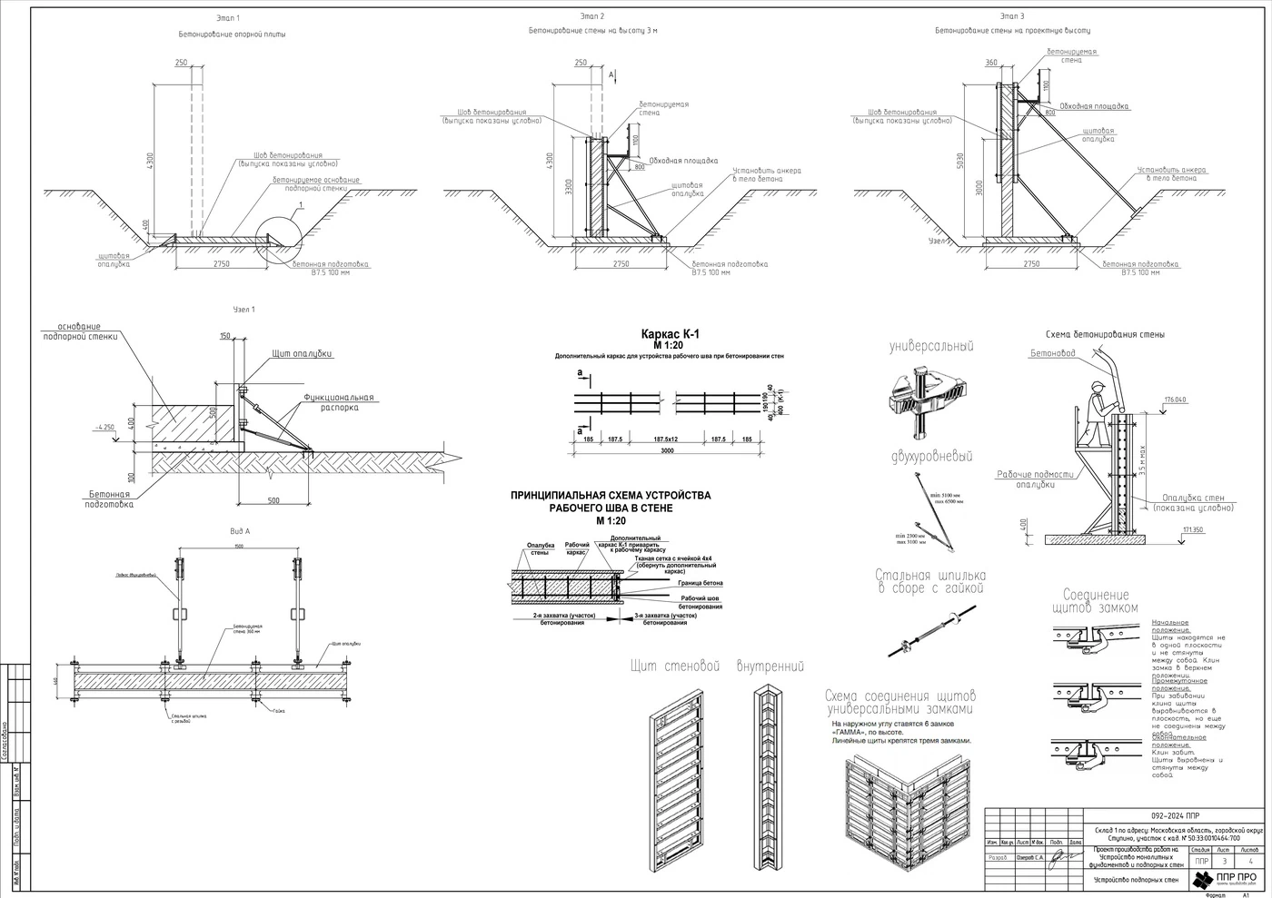
В ППР на монолитный фундамент прописываются технологические решения, обеспечивающие соответствие выполненных конструкций проектным требованиям: правильная установка опалубочных щитов с контролем геометрии, качественная вязка арматурных каркасов с обеспечением защитного слоя бетона, укладка бетонной смеси без расслоения с уплотнением глубинными вибраторами, уход за бетоном фундамента для набора проектной прочности.
Технология монолитных работ: опалубка, армирование, бетонирование
Для монтажа опалубки фундаментов прорабатывается тип системы (щитовая разборная, мелкощитовая, несъемная из экструдированного пенополистирола), порядок установки и крепления щитов, контроль вертикальности и геометрии, обработка внутренних поверхностей смазкой для облегчения распалубки и обеспечение герметичности стыков между элементами. Для армирования указывается последовательность вязки каркасов и сеток из стержней диаметром 12-16 мм, способы установки в проектное положение, обеспечение защитного слоя бетона не менее 35 мм фиксаторами-стульчиками, контроль шага стержней и мест закладных деталей для инженерных коммуникаций.
Для бетонирования монолитного фундамента детализируется метод подачи бетонной смеси (насосом, автобетоносмесителем по лотку, бадьей), толщина слоев укладки 0,3-0,5 м, режим виброуплотнения глубинными вибраторами с шагом погружения не более 1,5 радиуса действия, устройство рабочих швов и технологических перерывов при больших объемах бетонирования. После набора бетоном распалубочной прочности выполняется демонтаж фундаментов от опалубочных систем с последующим устройством гидроизоляции наружных поверхностей конструкций обмазочными битумно-полимерными мастиками или наплавляемыми рулонными материалами в два слоя.
ППР на бетонные работы фундаментов: контроль качества
В проекте производства работ ППР на бетонные работы фундаментов устанавливается порядок входного контроля бетонной смеси (подвижность П3-П4, температура не ниже +5°С, соответствие паспорту РБУ), отбора контрольных образцов-кубиков размером 150х150х150 мм на объекте и передачи их в аккредитованную лабораторию для испытаний на прочность через 7, 14 и 28 суток.
Определяются сроки демонтажа опалубки фундаментов в зависимости от набранной прочности бетона (обычно 50-70% проектной для вертикальных поверхностей ленточных фундаментов, 100% для плитных при снятии подпорок), методы неразрушающего контроля прочности склерометром или ультразвуковым прибором на месте производства работ.
Фиксируются требования к оформлению исполнительной документации по устройству монолитных фундаментов: журнал бетонных работ, акты освидетельствования скрытых работ на армирование, протоколы испытаний бетона на прочность, исполнительные геодезические схемы фактических отметок подошвы и верха фундаментов.
ППР на гидроизоляцию фундаментов: защита от грунтовых вод
ППР на гидроизоляцию фундаментов разрабатывается с учетом уровня грунтовых вод, агрессивности среды и требований проектной документации к типу защитного покрытия конструкций от увлажнения. Для обмазочной гидроизоляции фундаментов прописывается технология подготовки поверхности бетона (очистка, грунтование праймером), количество слоев битумно-полимерной мастики (обычно 2-3 слоя общей толщиной 3-5 мм), время выдержки между нанесениями и контроль сплошности покрытия без пропусков и непроваров.
Для рулонной наплавляемой гидроизоляции фундаментов детализируется укладка материалов на битумной основе в два слоя перпендикулярно друг другу, прогрев горелкой для наплавления и сварки стыков полотен с перехлестом не менее 100 мм, устройство защитной стяжки из цементного раствора толщиной 30 мм для предотвращения повреждений при обратной засыпке пазух котлована.
ППР на демонтаж фундамента: технология разборки
ППР демонтаж фундамента при реконструкции или сносе зданий включает последовательность разрушения конструкций гидромолотом на базе экскаватора, резку железобетона алмазными дисками, раскрытие арматурных каркасов газорезкой, погрузку обломков в самосвалы и вывоз строительного мусора с площадки на полигон утилизации.
В ППР демонтаж фундаментов прорабатываются мероприятия по безопасности труда при работе с тяжелой техникой, защите соседних конструкций от повреждений, контролю уровня вибрации и шума, соблюдению графика производства работ с учетом требований городских служб по времени использования ударных механизмов на объектах.
Бетонирование фундаментов в зимних и летних условиях
Для бетонирования монолитных фундаментов в зимний период разрабатываются мероприятия по прогреву бетона электродами или греющими проводами ПНСВ с трансформаторами подстанций, утеплению опалубки и открытых поверхностей конструкций минераловатными матами, применению противоморозных добавок на основе нитрита натрия и контролю температуры твердения для набора прочности не менее 50% проектной перед распалубкой.
Для работ в жаркую погоду предусматриваются меры по защите бетона фундамента от обезвоживания: укрытие поверхности влажной мешковиной или пленкой, регулярный полив водой каждые 3-4 часа, применение пленкообразующих составов и пластифицирующих добавок для замедления испарения влаги и предотвращения появления усадочных трещин.
Москва и регионы: учет климата и логистики
Проекты производства работ на фундаменты выполняются для объектов в Москве, Московской области и по всей России с учетом климатических условий региона, глубины промерзания грунта, доступности поставок бетонной смеси с ближайших РБУ, графика движения автобетоносмесителей и размещения бетононасоса на стесненных городских площадках.
Для московских объектов учитываются требования городских служб по организации движения тяжелой строительной техники, времени производства работ с ограничениями по шуму в жилых зонах, согласовательным процедурам при производстве земляных работ вблизи подземных коммуникаций и в зонах охраны культурного наследия.
Виды фундаментных конструкций
ППР монтаж фундаментов разрабатывается для всех типов оснований: устройство монолитных ленточных фундаментов под несущие стены, плитных оснований под здания целиком, свайно-ростверковых фундаментов на буронабивных или забивных сваях, столбчатых фундаментов под колонны каркасных зданий и фундаментных блоков ФБС сборных конструкций.
Для каждого типа конструкций прописываются особенности технологии: для ленточных фундаментов — подготовка траншей и устройство песчаной подушки, для плитных — разработка котлована с уплотнением основания и устройство бетонной подготовки толщиной 100 мм, для свайных ростверков — монтаж опалубки по оголовкам свай с выпусками арматуры, для сборных — монтаж блоков ФБС краном с заполнением швов цементным раствором.
Сроки и стоимость разработки ППР
Типовой проект производства работ на устройство монолитного фундамента при наличии полного комплекта исходных данных (рабочий проект конструкций КР, результаты инженерно-геологических изысканий, ведомости объемов бетона и арматуры, ПОС, техзадание заказчика) разрабатывается от 3 рабочих дней с момента получения документации.
Стоимость зависит от объема бетонных работ фундаментов (кубометры бетона), площади гидроизоляции, сложности армирования конструкций, количества типов фундаментов на объекте и необходимости проработки зимнего бетонирования с расчетом теплового прогрева или устройства дренажа для понижения уровня грунтовых вод.
Для оценки задачи достаточно направить рабочий проект конструкций КР раздела, результаты инженерных изысканий ИГИ, ведомости бетона и арматуры, краткое описание объекта и требования технического надзора — будет предложен срок разработки ППР фундамента, состав документации и бюджет.
Примеры выполненных ППР на бетонные работы
Ознакомьтесь с образцами наших работ — качественно разработанными проектами производства работ для различных типов фундаментных конструкций (ленточные, плитные, свайные ростверки, фундаменты под колонны, сборные из блоков ФБС) с полным комплектом технологических карт, стройгенпланов и мероприятий по контролю качества бетонных работ и гидроизоляции.





Разработка ППР на земляные работы в составе комплексного проекта на объект нулевого цикла строительства.
Вносим правки до полного согласования документации. Комплект проекта производства работ на устройство фундаментов согласовывается с техническим надзором заказчика, учитывает замечания стройконтроля и представителей авторского надзора проектной организации, что обеспечивает беспроблемное производство работ без остановок, предписаний инспекций и переделок конструкций на объекте.
